השלם עולה על סך כל חלקיו
הבית שתכננה האדריכלית שרון נוימן באחת מערי השרון נרקם כמקבץ של קוביות. כל חלל בו אמנם מוגדר בנפרד, אך ביחד הם מתאחדים לשלמות אחת - למרחב מגורים מודרני וחמים כאחד.
|
תכנון: אדריכלית שרון נוימן, שרון נוימן אדריכלים צוות תכנון: הילה צור (אדריכלית אחראית), שרון וולמן פיקוח בנייה: גיל אבין |
בניגוד לרוח התכנון הרווחת היום, שמרכזת מספר פונקציות בחלל אחד, לדיירים הייתה דווקא העדפה לחלל פנים בסגנון פורמאלי ומסורתי יותר, בו כל פונקציה היא חלל מוגדר בפני עצמו - סלון נפרד, מטבח נפרד, חדר אוכל שהינו חלל תחום ומוגדר ולא רק פינה סמוכה למטבח, וכן הלאה” מספרת האדריכלית שרון נוימן על הבית שתכננה באחת מערי השרון.

"את החזות החיצונית, הם העדיפו במראה מודרני נקי קווים, אך כאן התעוררה בעיה מסוימת בשל דרישת התב”ע במקום לגגות רעפים אדומים” היא מוסיפה. במטרה לספק מענה להעדפות הדיירים, ובה בעת ליישר קו עם דרישות התכנון של העיר, הקונספט הרעיוני של נוימן נועד לשלב בין הרצונות לבין ההכתבות, וההשראה לטווייתו נשאבה לדבריה מ”נוף של כפר יווני עם גגות בגבהים שונים”.
הגובה הלא אחיד של המראה הכפרי תורגם על ידה למעטפת הנרקמת ממקבץ קוביות, ובכלל זה שטחי חוץ המשמשים כחדרים חיצוניים. הקוביות מתכנסות סביב חצר פנימית, כאשר כל קוביה היא, למעשה, פונקציה בחלל הפנים ומתנשאת לגובה שונה. נוימן: ”בשל הגבהים השונים, לכל קוביה נוצר גג רעפים משלה, קטן יותר ולכן גם נמוך יותר, ובסמיכותם של הגגות זה לזה נוצרת זרימה שכמו "מתפשטת לרוחב” ומשמרת מראה נקי, שונה בתכלית מחזות מוכרת של גג רעפים מסורתי”.
כך, הבית שנבנה על מגרש ישר שגודלו 820 מ”ר אכן נצפה מהרחוב כמבנה ‘עכשווי’ נקי קווים מחופה טיח וגה אפור, למעט המבנן המרכזי שחופה בגון כהה יותר, כסוג של ביטוי גראפי לסכימת התנועה בבית.

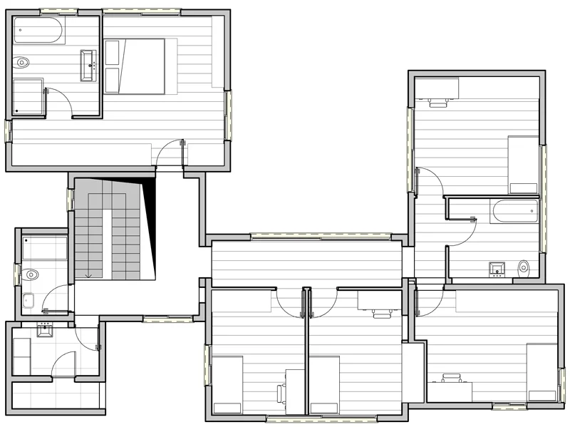
מרחב הפנים משתרע על שטח נדיב של 477 מ”ר, בו מייצר קונספט הסגמנטים שפת חלל מאורגנת מאד מחד, וגמישה מאד מאידך. תחושת הרווחה שמייצר שטח הפנים הגדול נגלית כבר במבואת הכניסה, אשר ברוח התכנון נפרשת כחלל מלבני מוגדר המכיל בשטחו את גרם המדרגות המוביל לקומה העליונה ולקומת מרתף, וממנו ישנן יציאות/מעברים לפטיו, לסלון, למטבח, לשירותי אורחים ול”חדר בוץ”- סוג של חלל מלתחה/שירות הממוקם לצד המבואה ומיועד בעיקר לאחסון זמין ו”’ראשוני”.

בקומת הקרקע ממוקמים סלון, מטבח גדול, חדר אוכל וחדר משפחה, שמכולם ישנה גישה ישירה אל החוץ, ובקומה העליונה 4 חדרי ילדים, יחידת הורים וחדר כביסה שמיקומו בשטחה הוא לדברי נוימן "הכי פרקטי. קרוב למקום בו היא נוצרת”. בקומת המרתף נקבע מיקומם של חדר עבודה, ממ”ד, חדר שינה לאירוח, והיא כוללת אף שפע של חללי אחסון פונקציונאליים.

כל אחד מחללי הבית תחום ב-4 קירות בעובי 20 ס”מ, כאשר ‘במפגש’ בין חללים הגובלים זה עם זה נוצר עובי קיר כפול- 40 ס”מ - המנוצל לאחסון או להצנעת אלמנטים לא אטרקטיביים.

העובי המכובד שנוצר אגב כך הוא מרכיב משמעותי בשפת התכנון, שמוצא את ביטויו בדרכים שונות: אם בהדגשת נוכחותם של המעברים בין חלל לחלל, אשר בתוך כך מדגישה גם את הממד הרעיוני של פונקציות נפרדות, ואם בניצול ממד העומק שהוא מייצר לצרכי אחסון שונים ומגוונים, כמו גם להצנעת מזגנים.
החומריות בבית מותאמת למהותן של הפונקציות השונות ומשרתת את אופי התנועה בחללו: לריצוף חללי האירוח נבחרה אבן חלילה, חללי הקומה העליונה רוצפו בפרקט, ואילו ריצוף המעברים, כמו גם חיפוי הדופן הפנימית שלהם, נעשה בבטון המדגיש את תפקודם כמחבָּרים. בכל המעברים הותקנה תאורה עילית שקועה, ועל מנת לשמר את מלוא שטחם פיתחה נוימן פרט נגרות מיוחד של משקוף חיצוני לדלתות שהותקנו בהם: משקוף שאינו נוגס מנפחם/שטחם ומותיר אותם בחזקת ‘נטו’ מעברים.
המעברים בין חלל לחלל מהווים מרכיב משמעותי בשפת תכנון המגדירה פונקציות נפרדות, ומודגשים באמצעות חומריות שונה.
כמו המעברים המתפקדים כמחברים, כך גם גרם המדרגות המוביל אל קומת החדרים העליונה בנוי מבטון, ומלווה במעקה מתכת אוורירי. נוימן: "מיקום החדרים בקומה נקבע בהתייחס למבנן המכיל אותם ולחלל המצוי תחתיהם, וגם כאן נוצל העובי הכפול של קירות המפגשים לצרכי העיצוב, דוגמת גומחות המשמשות לאחסונים שונים באופנים מגוונים”.

התאורה בבית מתקבלת בעיקר מגופים צמודי קיר ותקרה, ובפתחים הרבים שסובבים את כלל חלליו - דלתות ופתחי חלונות- נעשה שימוש בפרופיל בלגי בגון אפור כהה.

עיצוב הפנים מתובל בפלטת גווני תכלת למיניהם, ומידתיות, ה”אני מאמין” של נוימן, היא מילת המפתח המובילה אותו כשילוב מושכל של פונקציונאליות ואסתטיקה: חלל מודרני וחמים כאחד, חף מעומס פריטים, אך מלא בתכנים אישיים. כך, למשל, שתי ספריות המשתלבות בחלל הסלון ומעשירות אותו בתוכן תרבותי, כאשר אחת היא תוצר של ניצול עובי מפגש הקירות, שבמיקומו אף תוחם את מהלך גרם המדרגות במראה יוצא דופן של ספרים מבצבצים מול דלת הכניסה. המטבח, חלל משמעותי בחיי הבית, הוא חלל רחב ידיים שעיצובו משלב עץ אלון וגימור צבע בתנור ואי נדיב ממדים שניצב במרכזו משמש גם כשולחן אוכל בחיי היומיום.
מחללו ישנו מעבר לחדר משפחה/משחקים מרווח ומאובזר כראוי לשעות פנאי ומשחק, כך שלמרות ההפרדה המוחלטת בין הפונקציות סמיכותן זו לזו מסייעת להתנהלות ביתית נכונה של משפחה עם ארבעה ילדים קטנים.

מיקום חדרי הקומה העליונה נקבע בהתייחס למבנן המכיל אותם ולחלל המצוי תחתיהם בקומת הקרקע.

בחדרי הילדים אף נלקחו בחשבון צרכים עתידיים שמן הסתם ייוולדו עם הגיל המשתנה, דוגמת חלוקה לשני חדרים, וכל חללי הקומה טופלו ברוב תשומת לב עם פריטי נגרות שהותאמו להם ייעודית ושילובי טקסטיל מוקפדים המייצרים חללים נעימים ומסוגננים למראה.

יחידת ההורים בקומה העליונה: חלל רחב ידיים הכולל בשטחו גם חדר רחצה ושפע אחסון המנצל את העובי הנוצר בעת מפגש הקירות של חללים הגובלים זה עם זה. עיצוב מסוגנן ורך בגווני תכלת. טפט ווילונות: איילת גיא. נגרות חדר שינה ורחצה: "ארטו".

חדר הרחצה: חלל מרווח בעיצוב מפנק המשלב אביזרים סניטאריים מסוגננים ונגרות ייעודית בעץ אלון. חיפויים וכלים סניטאריים: "חזי בנק".

חדר האוכל, המיועד לנסיבות חגיגיות ו/או רשמיות יותר, הוא חלל אינטימי ונעים תחום בשקיפות החושפת את נוף הגינה, וטוויסט חינני ששולב בו הוא הבדים השונים שמשמשים לריפוד הכיסאות שצוותו לשולחן האוכל העשוי בטון בעיצובה של נוימן.

חצר הפטיו סביבה מתכנסים המבננים היא חלק בלתי נפרד מהתנהלות החיים בבית: נופה חודר פנימה מבעד לפתחים המרובים והגישה הישירה אליה מכל חלל וחלל הופכת אותה לאזור זמין ומזמין לבלות בשטחו- מזמין כמו מרחב הבית כולו, שהמידתיות שננקטה בעיצובו אכן עושה את שלה: למרות ממדיו הגדולים נשמרת בו צניעות ותחושה ביתית חמימה, ולצד חזותו המסוגננת מעניק לדייריו נוחות פונקציונאלית, שעל ערכה מיותר להכביר מילים.



אולי תאהבו גם ...
>> עיצוב בהזזה - מדירה סתמית למרחב גמיש ודינאמי - אדריכל יוסי פרידמן
>> שטח קטן, מרחב גדול - אדריכל מרק טופילסקי
>> חויה מתקנת - שיפוץ הדירה שביצעה דלית ונגרובסקי