שיק טבעי
תכנון

שיק טבעי

דירה קטנה מרובת אלכסונים הפכה בידי המעצבים אושרי אבירם ודנה קושמירסקי למרחב מגורים חמים ופונקציונאלי, ששפתו האסתטית נשענת על שימוש בחומרים טבעיים ובראשם MDF במופעו הגולמי-ראשוני

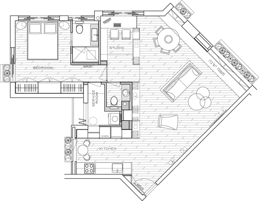
הדירה הקטנה ממוקמת בלב תל אביב, וכשביקרנו בה לראשונה גילינו מעטפת מרובת קירות אלכסוניים שיצרה חוסר שקט עיצובי. עם זאת, כמעצבים "קראנו" בה גם הרבה פוטנציאל" מספרים אושרי אבירם ודנה קושמירסקי על מפגשם עם החלל המאתגר.

החלל הציבורי: מרוצף פרקט אלון מגוון לאפור, וספסל שתוכנן בצמוד לויטרינות מסייע 'לרבע' את החלל, כשבסיסו העשוי עץ מושחר מכיל מגירות ומשטחו העשוי אבן סן מרטין משמש לישיבה וכבמה להצגת פריטי נוי. משמאל נראה האלמנט המרכזי שמגדיר את חלוקת אזורי הדירה- 'גוש' עשוי MDF המכיל ספרייה וחללי אחסון, וגולש גם לאזור החדרים. פרקט: "פרקטים", נגרות ספסל וכל העבודות בבית: דרור אסולין נגרות בטכנולוגיה מתקדמת, משטח אבן סן מרטין: אבני טל, ביצוע עבודות אבן: משה הוד.

החלל הציבורי: מרוצף פרקט אלון מגוון לאפור, וספסל שתוכנן בצמוד לויטרינות מסייע

החלל הציבורי: מרוצף פרקט אלון מגוון לאפור, וספסל שתוכנן בצמוד לויטרינות מסייע 'לרבע' את החלל, כשבסיסו העשוי עץ מושחר מכיל מגירות ומשטחו העשוי אבן סן מרטין משמש לישיבה וכבמה להצגת פריטי נוי. משמאל נראה האלמנט המרכזי שמגדיר את חלוקת אזורי הדירה- 'גוש' עשוי MDF המכיל ספרייה וחללי אחסון, וגולש גם לאזור החדרים. פרקט: "פרקטים", נגרות ספסל וכל העבודות בבית: דרור אסולין נגרות בטכנולוגיה מתקדמת, משטח אבן סן מרטין: אבני טל, ביצוע עבודות אבן: משה הוד.

 "הדירה, ששטחה 72 מ"ר, נועדה למגורי דייר שביקש 'להרגיש בבית', ליהנות מאווירה נעימה ואינטימית ומחלל בעל אופי אליו יוכל להתחבר. ברובד הפונקציונאלי חשוב היה לו שהדירה  תכיל חללי אחסון רבים לצרכים שונים ומגוונים שהגדיר, מהם כאלה שאינם בהכרח מאפיינים 'פרוטוקול אחסון' בדירה קטנה". למידה מעמיקה של צרכים אלה, של אורחות חייו ושל שגרת יומו, הובילה את אבירם וקושמירסקי לתפור מענה תכנוני הולם שאף נדרש להתאים לתקציב נתון, ואשר מטרתו, לדבריהם, הייתה "ל'רבע' את האלכסונים כמה שרק ניתן, וליצור חלל מרכזי מרווח ופתוח, המשמר ניקיון צורני, זרימה טובה ופתיחות לסביבה על מנת למקסם את תחושת המרחב".

אזורי הסלון ופינת האוכל: עיצוב א-פורמאלי גמיש, המשמר מראה אותנטי וחם. הויטרינות נתונות בפרופיל אלומיניום שחור ודקיק דקיק החובר בחזותו לספסל שבתחתיתן, ומרבית פריטי הריהוט עוצבו ייעודית עבורו תוך שימוש בחומרים טבעיים והקפדה על שפה אסתטית המשלבת צורניות גראפית-גיאומטרית ומוטיב מעוגל. ויטרינות: כוכב אלומיניום, פריטי ריהוט: LEELOU HOME טולמנ

אזורי הסלון ופינת האוכל: עיצוב א-פורמאלי גמיש, המשמר מראה אותנטי וחם. הויטרינות נתונות בפרופיל אלומיניום שחור ודקיק דקיק החובר בחזותו לספסל שבתחתיתן, ומרבית פריטי הריהוט עוצבו ייעודית עבורו תוך שימוש בחומרים טבעיים והקפדה על שפה אסתטית המשלבת צורניות גראפית-גיאומטרית ומוטיב מעוגל. ויטרינות: כוכב אלומיניום, פריטי ריהוט: LEELOU HOME טולמנ'ס, תאורה: S.T אור.

אזורי הסלון ופינת האוכל: עיצוב א-פורמאלי גמיש, המשמר מראה אותנטי וחם. הויטרינות נתונות בפרופיל אלומיניום שחור ודקיק דקיק החובר בחזותו לספסל שבתחתיתן, ומרבית פריטי הריהוט עוצבו ייעודית עבורו תוך שימוש בחומרים טבעיים והקפדה על שפה אסתטית המשלבת צורניות גראפית-גיאומטרית ומוטיב מעוגל. ויטרינות: כוכב אלומיניום, פריטי ריהוט: LEELOU HOME טולמנ

אזורי הסלון ופינת האוכל: עיצוב א-פורמאלי גמיש, המשמר מראה אותנטי וחם. הויטרינות נתונות בפרופיל אלומיניום שחור ודקיק דקיק החובר בחזותו לספסל שבתחתיתן, ומרבית פריטי הריהוט עוצבו ייעודית עבורו תוך שימוש בחומרים טבעיים והקפדה על שפה אסתטית המשלבת צורניות גראפית-גיאומטרית ומוטיב מעוגל. ויטרינות: כוכב אלומיניום, פריטי ריהוט: LEELOU HOME טולמנ'ס, תאורה: S.T אור.

כמי שתפיסתם דוגלת בכנות החומר, החומר הוא אמנם הנרטיב של העיצוב החדש, ומצליח להפתיע עם השחקן הראשי שמככב בו-  MDF במופעו הגולמי- טבעי, ללא כל התערבות בגונו או שילוב חיפוי כזה או אחר, דוגמת פורניר או צבע. "למעשה, את מוגבלות התקציב הפכנו כאן ליתרון, שבה בעת  עולה בקנה אחד עם האני מאמין שלנו בחומרים טבעיים " הם אומרים על הבחירה הלא שגרתית שטווה כאן חלל ייחודי ואותנטי למראה, א-פורמאלי וחם מאד. לצד ה MDF, אף החומרים האחרים שמשתלבים בעיצוב הדירה הם חומרים טבעיים, דוגמת עץ טבעי בוורסיות שונות, ובכלל זה ריצוף פרקט שבוצע מאלון מגוון לאפור, משטחי אבן ושיש לסוגיהם שמופיעים בפריטי ריהוט, במטבח ובחדר הרחצה, מתכות כברזל ופליז המשמשים בפריטי נגרות ובאלמנטים משלימים, ובדים טבעיים כפשתן, כותנה וצמר. בתוך כך, גם שפת הצבע של החלל נשענת על גוונים טבעיים, עם תיבול של גווני לבן ושחור ונגיעות עדינות מאוד של "מוזהבות" שמעניקים השימוש בפליז והאבזור המשלים. 

קרני שמש החודרות מבעד תריסי צלונים משרטטות בחלל דיגום פסים החובר למופעו הגראפי-גיאומטרי.

קרני שמש החודרות מבעד תריסי צלונים משרטטות בחלל דיגום פסים החובר למופעו הגראפי-גיאומטרי.

עם הסרת המחיצות ששימשו בחלל המקורי ויצרו חדרים קטנים וחשוכים, החליטו אבירם וקושמירסקי להותיר את הגובה הקיים ללא שילוב כל הנמכות/סינרי גבס, כאשר במקביל כל עבודות הנגרות הרבות ששולבו בו תוכננו עד גובה התקרה. האלמנט המרכזי בהן הוא 'גוש' עשוי על טהרת ה- MDF המתפרש כמעט "מקצה לקצה" בחלל הציבורי, מכיל ספרייה גדולה ואף זולג לאזורים נוספים כשהוא מגדיר אגב כך את חלוקת השטח: צדו האחד חודר למטבח, שם הוא מהווה חלק מהארונות ומכיל אביזרי חשמל אינטגראליים, ומרכזו מוביל למבואת החדרים, בה אף דלתות הכניסה לחלליהם, חדר העבודה, התקרות והארונות עשויים מ-MDF, ומייצרים המשכיות חומרית-ויזואלית. 

שולחנות קלים לניוד וגמיש בהתאם לצרכים, שעיצובם משלב פליז ושיש.

שולחנות קלים לניוד וגמיש בהתאם לצרכים, שעיצובם משלב פליז ושיש.

קרני שמש החודרות מבעד תריסי צלונים משרטטות בחלל דיגום פסים החובר למופעו הגראפי-גיאומטרי.

קרני שמש החודרות מבעד תריסי צלונים משרטטות בחלל דיגום פסים החובר למופעו הגראפי-גיאומטרי.

את שני עבריו של הגוש, ולמעשה את שני עברי החלל הציבורי, כמו תוחמות מחיצות עשויות סרגלים אופקיים מעץ אלון מושחר, אשר בהיותן מנוגדות לו מבחינת חומר, טקסטורה וצבע, הן יוצקות עניין שונה המגוון ומאזן את המראה. בחזותן האטומה והכהה של המחיצות משתלבים אזורים 'מאווררים', בהם מרווחים ש'נפתחים' בין הסרגלים בדומה לחרכי תריסים, מאפשרים הצצה לנעשה מאחוריהם- לחדר העבודה מצד אחד, ולמטבח מצד שני. באזור המטבח ממשיכה מחיצת הסרגלים ונכנסת פנימה לתוך חללו, וכמו גוש ה-MDF שזולג לתוכה ומנוצל לצרכי אחסון, כך גם היא הופכת לחלק ממנו ומכילה ארונות וחללי אחסון נסתרים.   

הספסל כאלמנט רב תכליתי המייצר אשליית קו ישר. פריטי נוי, כריות וטקסטיל: SETI.

הספסל כאלמנט רב תכליתי המייצר אשליית קו ישר. פריטי נוי, כריות וטקסטיל: SETI.

שולחנות קלים לניוד וגמיש בהתאם לצרכים, שעיצובם משלב פליז ושיש.

שולחנות קלים לניוד וגמיש בהתאם לצרכים, שעיצובם משלב פליז ושיש.

נתח נכבד מהאלמנט המרכזי תופסת הספרייה שתוכננה בקו אורכי ישר, אשר נועד להסיט את העין מהמעטפת האלכסונית שהייתה בגדר מצב נתון, ולהעצים עד כמה שניתן את תחושת המרחב שאכן נדמית כגדולה יותר מממדיה הפיסיים של הדירה בפועל. עיצובה משלב מדפים פתוחים לצד חללים סגורים המשמשים לצרכי אחסון שונים, ובכלל זה מערכות אודיו/וידאו, בר משקאות שתוכנן כיחידה סגורה הנפתחת והופכת לבר משקאות מואר ונגיש, אחסון גלוי של מקרר יין לצד אחסון נסתר של הבקבוקים ועוד. להדגשה נוספת של ממד האורך ומיתון הממד האלכסוני תוכנן גם אלמנט נגרות- מעין ספסל, הנמשך לכל אורכו של קיר המעטפת בצמוד לאדני הויטרינות המשתלבות בו. 

אלמנט ה-MDF במבט חזיתי: מכיל ספרייה וחללי אחסון שונים שתוכננו בקו אופקי כדי להסיט את העין מהמבנה האלכסוני של החלל ולמתן אותו. במרכזו ישנה כניסה לאזור החדרים, ואת שני עבריו תוחמות מחיצות עשויות סרגלים אופקיים מעץ אלון מושחר, שמנוגדות לו מבחינת חומר, טקסטורה וצבע, ואגב כך יוצקות עניין שונה ומאזן.

אלמנט ה-MDF במבט חזיתי: מכיל ספרייה וחללי אחסון שונים שתוכננו בקו אופקי כדי להסיט את העין מהמבנה האלכסוני של החלל ולמתן אותו. במרכזו ישנה כניסה לאזור החדרים, ואת שני עבריו תוחמות מחיצות עשויות סרגלים אופקיים מעץ אלון מושחר, שמנוגדות לו מבחינת חומר, טקסטורה וצבע, ואגב כך יוצקות עניין שונה ומאזן.

הספסל כאלמנט רב תכליתי המייצר אשליית קו ישר. פריטי נוי, כריות וטקסטיל: SETI.

הספסל כאלמנט רב תכליתי המייצר אשליית קו ישר. פריטי נוי, כריות וטקסטיל: SETI.

בסיסו של הספסל עשוי עץ מושחר ומכיל מגירות, משטחו העליון עשוי אבן סן מרטין, והוא מתפקד כאלמנט רב תכליתי: מספק מקומות ישיבה נוספים ואף מהווה במה להנחת פריטי נוי, המגירות שבבסיסו משרתות צורכי אחסון, ובחבירתו לפרופיל האלומיניום הדקיק והשחור של הויטרינות הוא מייצר מסגרת נאה לחלונות תוך הדגשת החיבור בין הפנים והחוץ.  

גוש ה-MDF

גוש ה-MDF 'מסתובב' וגולש לחלל המטבח, בו הוא מהווה חלק מהארונות הגבוהים ומכיל מכשירי חשמל אינטגראליים.

אלמנט ה-MDF במבט חזיתי: מכיל ספרייה וחללי אחסון שונים שתוכננו בקו אופקי כדי להסיט את העין מהמבנה האלכסוני של החלל ולמתן אותו. במרכזו ישנה כניסה לאזור החדרים, ואת שני עבריו תוחמות מחיצות עשויות סרגלים אופקיים מעץ אלון מושחר, שמנוגדות לו מבחינת חומר, טקסטורה וצבע, ואגב כך יוצקות עניין שונה ומאזן.

אלמנט ה-MDF במבט חזיתי: מכיל ספרייה וחללי אחסון שונים שתוכננו בקו אופקי כדי להסיט את העין מהמבנה האלכסוני של החלל ולמתן אותו. במרכזו ישנה כניסה לאזור החדרים, ואת שני עבריו תוחמות מחיצות עשויות סרגלים אופקיים מעץ אלון מושחר, שמנוגדות לו מבחינת חומר, טקסטורה וצבע, ואגב כך יוצקות עניין שונה ומאזן.

כדי למקסם את תחושת המרחב בכל רחבי הדירה, פריטי הריהוט שנבחרו עבורה מאופיינים בעיצוב מרחף וקליל המשמר 'מידתיות', ומרביתם עוצבו כ- CUSTOM  MADE. במסגרת זו השימוש בטקסטורת ה"פסים" של המחיצות מקבל הד כשהוא שב ומופיע בגרסאות מגוונות כמוטיב צורני בפריטי ריהוט ובאלמנטים משלימים ומשלב בהרמוניה את הניקיון והאחידות עם עניין גראפי-גיאומטרי. כך, למשל, חזיתות הארון בחדר השינה שאף הוא עשוי מאותו MDF גולמי, עוצבו עם טקסטורה של קוים אנכיים במרווחים משתנים; כורסה שעוצבה מסרגלי עץ אופקיים חצי אטומים בגוון טבעי; כריות מבדים עם משחקי פסים/ קווים; חיפוי  קיר חדר הרחצה באריחים לבנים שמייצרים צורניות גרפית; פריטי נוי ואמנות שלקוחים מתוך עולם העיצוב הגרפי, ואפילו תריסי הצלון שמשרטטים משחקי אור וצל בדמות "פסים" על הקיר והרצפה. כקונטרסט משלים לצורניות הגראפית שולבו בחלל גם פריטים עגולים, וככלל, מציינים אבירם וקושמירסקי "חשוב היה לנו ליצור מראה גמיש וא- פורמאלי, כמו למשל, פיזור כריות על הספסל לצורך ישיבה או השענת תמונה עליו במקום לתלות אותה על הקיר, שילוב שולחנות סלוניים הניתנים לניוד בקלות, וגישה פתוחה וישירה לספרייה". 

המחיצות האטומות למראה מעוצבות עם אזור

המחיצות האטומות למראה מעוצבות עם אזור 'מאוורר' בו נפתחים מרווחים בין הסרגלים ומאפשרים הצצה דרכם. כמו גוש ה-MDF אף הן גולשות לחלל המטבח כשהן מהוות חלק מעיצובו ומכילות ארונות וחללי אחסון נסתרים.

גוש ה-MDF

גוש ה-MDF 'מסתובב' וגולש לחלל המטבח, בו הוא מהווה חלק מהארונות הגבוהים ומכיל מכשירי חשמל אינטגראליים.

כך, כשהוא מציג אווירה אינטימית נעימה ואמירה אסתטית אישית ומגובשת שהותאמה בקפידה לבעליו, מכיל החלל גם את תכני תפיסת העולם של השניים "העיצוב עבורנו הוא מהות העומדת מעבר לזמן, והשאיפה שלנו היא תמיד לייצר משהו חדש ועניין אחר, אך ללא תלות בסגנון מוגדר או בתכתיבים אופנתיים. החללים שאנחנו מעצבים רלבנטיים לסגנון חיים עכשווי ולנוחות בת זמננו, אך בראש ובראשונה המטרה היא תמיד לייצר התאמה מוחלטת למשתמשים בהם"

כניסה מהאלמנט המרכזי למבואת החדרים, בה אף דלתות החללים, חדר העבודה, התקרות והארונות עשויים מ-MDF תוך יצירת המשכיות חומרית-ויזואלית.

כניסה מהאלמנט המרכזי למבואת החדרים, בה אף דלתות החללים, חדר העבודה, התקרות והארונות עשויים מ-MDF תוך יצירת המשכיות חומרית-ויזואלית.

המחיצות האטומות למראה מעוצבות עם אזור

המחיצות האטומות למראה מעוצבות עם אזור 'מאוורר' בו נפתחים מרווחים בין הסרגלים ומאפשרים הצצה דרכם. כמו גוש ה-MDF אף הן גולשות לחלל המטבח כשהן מהוות חלק מעיצובו ומכילות ארונות וחללי אחסון נסתרים.

בחדר השינה: חזיתות הארון עשויות MDF בטקסטורת פסים אנכיים.

בחדר השינה: חזיתות הארון עשויות MDF בטקסטורת פסים אנכיים.

חלל השירותים הנכלל כחלק מאלמנט ה-MDF. אריחי חיפוי וכלים סניטריים: Hezi Bank.

חלל השירותים הנכלל כחלק מאלמנט ה-MDF. אריחי חיפוי וכלים סניטריים: Hezi Bank.

כניסה מהאלמנט המרכזי למבואת החדרים, בה אף דלתות החללים, חדר העבודה, התקרות והארונות עשויים מ-MDF תוך יצירת המשכיות חומרית-ויזואלית.

כניסה מהאלמנט המרכזי למבואת החדרים, בה אף דלתות החללים, חדר העבודה, התקרות והארונות עשויים מ-MDF תוך יצירת המשכיות חומרית-ויזואלית.

חדר הרחצה: חיפוי קיר באריחים לבנים המייצרים מופע גראפי, ויחידת כיור מעוצבת מסגרת ורגליים מברזל, מגירות פורניר אלון מושחר ומשטח בזלטינה.

חדר הרחצה: חיפוי קיר באריחים לבנים המייצרים מופע גראפי, ויחידת כיור מעוצבת מסגרת ורגליים מברזל, מגירות פורניר אלון מושחר ומשטח בזלטינה.

בחדר השינה: חזיתות הארון עשויות MDF בטקסטורת פסים אנכיים.

בחדר השינה: חזיתות הארון עשויות MDF בטקסטורת פסים אנכיים.

חלל השירותים הנכלל כחלק מאלמנט ה-MDF. אריחי חיפוי וכלים סניטריים: Hezi Bank.

חלל השירותים הנכלל כחלק מאלמנט ה-MDF. אריחי חיפוי וכלים סניטריים: Hezi Bank.

חדר הרחצה: חיפוי קיר באריחים לבנים המייצרים מופע גראפי, ויחידת כיור מעוצבת מסגרת ורגליים מברזל, מגירות פורניר אלון מושחר ומשטח בזלטינה.

חדר הרחצה: חיפוי קיר באריחים לבנים המייצרים מופע גראפי, ויחידת כיור מעוצבת מסגרת ורגליים מברזל, מגירות פורניר אלון מושחר ומשטח בזלטינה.