עיצוב של שקיפויות ואור
תכנון

עיצוב של שקיפויות ואור

דירה חשוכה ודחוסה, עתירת קירות ומסדרונות, הפכה בידי האדריכלים תמר יעקבס ואושרי יניב למרחב בהיר, אוורירי וזורם. קונספט תכנוני שעיקרו יצירת מקסימום נקודות מבט ישירות בין ציריה השונים ושילוב פתחים המחדירים תאורה טבעית גם לאזוריה פנימיים, שינה את פני הדירה ללא הכר והוציא אותה מחושך לאור

"הדירה הייתה כל כך חשוכה וחסומה עם ריבוי של קירות, מסדרונות ותקרה נמוכה, עד שהתחושה בה הייתה ממש קלסטרופובית" אומרים האדריכלים תמר יעקבס ואושרי יניב, על דירת הגן השוכנת בהרצליה, לה העניקו תכנון מחודש. הדירה הדו קומתית, המשתרעת על 250 מ"ר, היא דירה מדורגת שנבנתה בשנות ה-80, ובגלגולה הנוכחי נרכשה ע"י תושבי חוץ, המרבים להגיע לארץ לתקופות שהות ארוכות, וביקשו  להפוך אותה לדירת נופש שאף תאפשר להם לארח בה את חבריהם וכמובן את משפחתם המורחבת- ילדים ונכדים.

יעקבס ויניב, שחזרו לפני כארבע שנים מעשר שנות מגורים באנגליה, במהלכן למדו ארכיטקטורה ב-AA ועבדו במשרדים מובילים - זאהא חדיד (יעקבס) ודיויד צ'יפרפילד (יניב), גיבשו את המענה לצרכים המבוקשים כקונספט תכנוני של חלל פתוח, אוורירי ומואר, שאכן מדגיש את ערכי הנופש-חופש ומעניק מרחב נוח לאירוח. "לשיטתנו, הדבר החשוב ביותר הוא לייצר חלל שעובד נכון ומואר נכון. חלל שאינו מורכב מחיבור של חלקים אקראיים שנבחרו מתוך קטלוג, אלא מוגדר מבראשית כמכלול, וארגונו בתכנית ובחתך, בחירת חומריו ושילוב האלמנטים ופרטי הבניין בו, קשורים לרעיון מרכזי כפי שהוגדר בתחילת העבודה" הם מסבירים. בנוסף, כמי שתופסים את שלב הבנייה ווידוא איכות הביצוע כחלק בלתי נפרד מהעשייה האדריכלית, הם ביצעו גם את ניהול הבנייה והפיקוח.

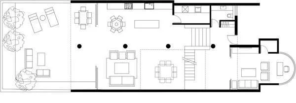
למעט עמודים קונסטרוקטיביים עגולים שנותרו מעברה של הדירה, "נוקה" החלל מכל מחיצות הפנים, וחלוקת חללו בוצעה מחדש. "הרעיון המרכזי היה להגיע לתכנית פתוחה וזורמת, ובכלל זה לייצר מקסימום נקודות מבט בין ציריו השונים של החלל ולשלב מקסימום פתחי אור להחדרת תאורה טבעית" אומרים יעקבס ויניב על החלל, שגובהו הרב נוצל ליצירת קומות ומפלסים המגדירים את אזורי המחייה בו: במפלס הכניסה, שחלקו מהווה מעין מבואה, ממוקמים פינת משפחה ושירותי אורחים, ומהלך מספר מדרגות נמוך ממנו נפרש מרחב שבסופו ישנה יציאה למרפסת גן, ושטחו כולל סלון מטבח ופינת אוכל.

מבט מתוך חדר המשפחה/טלוויזיה שבמפלס הכניסה אל עבר החלל.
מבט מאזור הכניסה אל עבר המפלס התחתון של הקומה הראשונה, שנפרש כמרחב הכולל סלון, מטבח ופינת אוכל, ובעומקו ישנו פתח יציאה למרפסת גן. ה

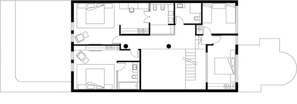
הקומה השנייה היא קומת מגורים, הנחלקת אף היא לשני מפלסים וזורמת כגלריה פתוחה החוצה את גובהו של החלל: בעברה האחד ממוקמות יחידת השינה של בעלי הבית וסוויטת אירוח נוחה, ובעברה השני, שהינו, למעשה מפלס נוסף, שני חדרי שינה (משמשים בד"כ את הנכדים) וחדר רחצה. "גם לאחר הסרת הקירות עדיין נותרו בחלל אילוצים שדרשו פתרונות הולמים" אומרים יעקבס ויניב "למשל, קורה רוחבית נמוכה שהתגלתה באזור הכניסה, והצורך להצניעה נוצל כהזדמנות לבניית מעין שתי במות אורכיות המלוות את מהלכו של הקיר, ובתוך כך מייצרות ערך צורני מוסף".

צירי מבט ישירים בין אזוריו השונים של החלל: מבט מפינת הישיבה אל עבר המפלס העליון של הקומה מאפשר להגיע עד עומק חללו של חדר המשפחה.

שתי הקומות בדירה מקושרות באמצעות גרם מדרגות אוורירי שעיצובו הקליל משלב קונסטרוקציית פלדה, מדרכי אבן ומעקה זכוכית, ובמיקומו על "תפר" שני מפלסי הקומה הראשונה הוא נצפה מכל כיוון, כמו מסמן/מדגיש את ציריו השונים של החלל ומהווה אלמנט בעל נוכחות משמעותית בקומפוזיציה המבנית.

מוטיב בולט בשפתו של החלל מהווה השקיפות ששזורה בו, ומאפשרת את יצירת המבטים הארוכים שעמדו בבסיס התכנון. כך, לדוגמה, המעקה השקוף של הגלריה שמייצר תחושת זרימה פתוחה בין הקומות וכמוהו גם פתח שקוף של חדר ילדים שמשקיף מטה אל הקומה התחתונה; הדלתות השקופות שהותקנו בפינת המשפחה ומאפשרות "לנתק" אותה מרעשי החלל תוך שמירת קשר עין ישיר עם המצויים באזוריו האחרים; חיפוי הזכוכית שהותקן בקיר המטבח, ואף לא מעט מפריטי הריהוט משלבים בעיצובם חומרים שקופים - זכוכית או פלסטיק שקוף. מעבר למבטים הארוכים שהיא מאפשרת, מצטלבת השקיפות עם תפיסתם של יעקבס ויניב את אור היום כאלמנט תכנוני לכל דבר, שמעצים רובדי אווריריות ופתיחות, ולצד הפתחים ה"רגילים" כפתחי חלונות ודלתות, שולבו בתכנון פתחים רבים נוספים שנועדו להחדיר תאורה טבעית גם לאזוריו הפנימיים, דוגמת חלקו העליון של קיר חדר הרחצה ביחידת השינה, שתוכנן במנותק מהתקרה תוך יצירת פתח אופקי שאף מרכך את תחושת המסה, או סקיילייטים שתוכננו מעל יחידת האיפור ובשירותים. כמו השקיפות והאור, כך גם חומריות החלל קשורה ישירות לרעיון התכנוני, והיא אכן מגלמת שקט ויזואלי: ריצוף באריחי אבן טבעית בהירה "ורנה" שהותקנו באורח המשווה לרצפה מראה של משטח אחיד, קירות בהירים בגון לבן שבור, ונגרות בגימור שלייף לק המקנה חזות אסתטית נקייה. התאורה המלאכותית שהותקנה בחלל מורכבת מגופים שקועים בתקרה ובאזורים ייעודיים דוגמת המטבח, מעט גופים קבועי קיר, וגופים דקורטיביים שתומכים במארג החומרי-עיצובי, כמו, למשל, גוף תאורה שמשתלשל מרום התקרה היישר אל מעל פינת האוכל, כשהוא קושר את שתי הקומות, ובה בעת מהווה מוקד ויזואלי בעל נוכחות מרשימה ואלמנט פונקציונאלי המפיץ אור ישיר לשולחן.

תוכנית קומה א
תוכנית קומת כניסה

את שפת העיצוב ניתן להגדיר כ"מינימליזם רך": מדויקת, מודרנית ונקייה בעיקרה, כאשר נוכחותם של העמודים העגולים יוצקת לתוכה מקצב של רכות נעימה, ובמסגרת המונוכרומאטית, שנשענת על גוונים בהירים, משובצת צבעוניות מעודנת של תתי גוונים ממשפחת צבעי אפור-ירוק וב'ז - בריפודים, בשטיחים, בעץ ממנו עשוי שולחן האוכל, וביחידות המטבח. נגיעה בודדת של צבע עז מעניקה נוכחותן של שתי כורסאות בריפוד ירוק בהיר, שחורגות אמנם ממרקם הצבע של החלל, אך מקבלות הד ויזואלי כשהן חוברות למערכת הישיבה הירוקה שבמרפסת הגן, אשר במיקומה ב"סוף" (בעומק) החלל נחשפת מבעד ויטרינות ענק תוך יצירת רצף ישיר עמו.

האסתטיקה המוקפדת שמאפיינת את מפלסי הקומה הציבורית אינה מופרת גם בחדרי הקומה העליונה, מונחית ע"י אותם מוטיבים של שקיפות ואווריריות המתורגמים לעיצוב נקי: יחידות ריהוט בהירות שבוצעו בהזמנה, שילוב של אלמנטים בנויים ומרחפים בחדרי הרחצה, ושימוש באבן ורנה לריצוף וחיפוי תוך יצירת חזות אחידה והרמונית. ככלל, נוכח האווריריות ותחושת המרחב הבהירה שמאפיינות את חלל ומבטיחות התנהלות נוחה ונעימה בו, דומה שרק מבט בתמונותיו מלפני התכנון המחודש יכול להעיד על היקף המטמורפוזה שעבר, כמו "יציאה מחושך לאור" - תרתי משמע ובמלוא הסמנטיקה של המילים.

מתוך מגזין 106: "מחושך לאור"