כחול הוא הצבע שלי
18 שנה אחרי שנבנה בוצע בבית שיפוץ סלקטיבי שנועד להתאימו לצרכים שהשתנו. מעצב הפנים גלי ג'נאח שבידו הופקדה המשימה קיבל בירושה אלמנטים קיימים וחבר אליהם עם התכנון החדש בהתאמה שאינה מפרה את שפת החלל ואת האמירה האישית של דייריו.מי אמר כחול ולא קיבל ? תכנון ועיצוב: גלי ג'נאח, מעצב פנים. קבלן ביצוע: אלפסי שלמה ובניו
עם השנים העוברות משתנים הצרכים וחדשים נולדים
הדבר הראשון ששובה את העין כשניצבים בפתחו של הבית השוכן בגני יהודה הם פתחיו הכחולים וגינה יפהפייה שעוטפת אותו, המייצרים תמונה ציורית המזמינה להיכנס פנימה. הבית, אותו תכנן האדריכל מרדכי בן חורין לפני 15 שנה, הוא מבנה חד קומתי בתצורת האות ר' שניצב על שטח נדיב המשתרע על חמישה דונם, ומאז בנייתו לא שופץ. בחיים כמו בחיים, עם השנים העוברות משתנים הצרכים וחדשים נולדים, וכך גם בבית זה המחשבה על שיפוץ כלשהו נולדה, למעשה, מאזור המטבח, אשר בתכנון המקורי היה חלל קטן יחסית עם מזווה צמוד. "הדיירים הם משפחה גדולה וחמה המנהלת אורח חיים פעיל ותוסס ומרבה לארח. עכשיו, כשהילדים בגרו ואף חבריהם מרבים לפקוד את הבית מסביר הפנים, הרחבת המטבח הייתה מתבקשת" אומר מעצב הפנים גלי ג'נאח שבידיו הופקדה המשימה.
החזית הקדמית של הבית:גינה מטופחת במראה טבעי ופתחים כחולים מייצרים תמונה ציורית המזמינה להיכנס פנימה.
נקודת המוצא
המטרה הראשונית הייתה אמנם שיפוץ המטבח, אך התהליך, לדברי גלי, הפך להיות "תהליך מתגלגל", שגלש גם ליחידת השינה של ההורים, וכן לטיפול באזורים ובאלמנטים נוספים. כך, למשל, התקרות האקוסטיות של המבנה המקורי הוחלפו בתקרות גבס, תכנון התאורה בוצע מחדש, מושתת בעיקרו על גופים שקועים משולבי נורות לד, ואף מערך התשתיות, דוגמת מיזוג אוויר, חודש במסגרת התהליך. עם זאת, עדיין מדובר היה בשיפוץ "סלקטיבי", ובתוך כך נדרש גלי להתחשב באלמנטים קיימים ש"קיבל בירושה" לדבריו, ובכלל זה ריצוף צפחה רב צבע בכל הבית, ומסגרות אלומיניום כחולות, הגון האהוב במיוחד על בעלת הבית, המשמשות בכל הפתחים הרבים המקיפים אותו (כולל התריסים). אלה, הוא מספר, היוו עבורו נקודת מוצא שהנחתה במידה רבה את בחירת החומרים והגוונים שנועדה לחבור לחלל הקיים."המטרה הייתה לשדרג את החלל על מנת שההתנהלות היומיומית בו תהיה נוחה יותר ומותאמת לצרכים העכשוויים, אך לא להפר את אופיו ע"י הכנסת אלמנטים שהינם זרים לשפתו האסתטית - שפה צבעונית שזורה בתכנים אישיים שמגלמת את החמימות הנינוחה של הבית ודייריו".
המטבח
המטבח ממוקם באחת מפינות המרחב הציבורי, והרחבתו בוצעה ע"י ביטול המזווה שהיה צמוד אליו וסיפוחו לחללו. בלבושו החדש הוא מאופיין בתצורת האות ח', פתוח אל החלל ובה בעת מוצנע ממנו במידה ראויה, ועיצובו משלב יחידות נגרות בהיקפו ויחידת אי הניצבת במרכז שטחו. יחידות הנגרות המספקות שפע של מקום אחסון עשויות עץ מייפל, ומשטחה של יחידת האי המשמשת גם כדלפק אכילה עשוי שיש כחול שמקורו בברזיל. גונו של המשטח חובר בהרמוניה לגון החלונות המקיפים את החלל ואף משתלב היטב עם גונו הניטראלי של עץ המייפל תוך יצירת עניין ויזואלי ייחודי, אך לא עז מידי או משתלט.
המטבח שהורחב ע"י ביטול מזווה צמוד שסופח לשטחו.יחידות נגרות מעץ מייפל משתלבות עם משטחי שיש כחול החוברים לגון החלונות העוטפים את החלל
תאורה:יאיר דורם, נגרות: אייל כנרתי משטחים : "שיש פרביטל "
הסלון
לחלל הסלון אליו נפתח המטבח העניק גלי נגיעות מרעננות: פריטי ריהוט אהובים רופדו מחדש כשעליהם פוזרו כריות מבדים עם דיגומים אתניים צבעוניים שבעלת הבית הביאה עמה מאפריקה, ועמם שולבו מספר פריטים חדשים שנרכשו, דוגמת ויטרינה מסוגננת המכילה אוסף אישי; שטיח טלאים עשוי קטעי שטיחים ישנים שחוברו להם יחדיו; או שולחן קפה נדיב ממדים המתקבל מצירוף של שלושה שולחנות בעיצוב מלבני המשלב משטחים מאדני רכבת ובסיסי ברזל.
חלל המגורים הפונה אל הגינה :פתחים כחולים עוטפים חלל צבעוני וחמים בו מודגשת אמירה אישית. שולחנות קפה: "סיאם " , שטיח וויטרינה : "קסטיאל "
יחידת השינה
יחידת השינה שהינה החלל הנוסף שעבר מטמורפוזה, הורחבה אף היא ע"י איחוד שני חדרים- חדר השינה המקורי ואחד מחדרי הילדים. שטחה המרווח רוצף בפרקט אלון וחולק לאזור שינה ולאזור רחצה באמצעות יחידת ארון דו צדדית, כאשר הכניסה לחללה היא לאזור ביניים המשתרע ביניהם כעין מעבר נוח. היחידה הדו צדדית עשויה מפורניר במבוק חמים למראה, בצדה הפונה לאזור השינה משתלבת טלוויזיה, ויתרת נפחה בשני הצדדים משמש לאחסון שתוכנן ע"י גלי בקפידה בהתאמה לאופיו- אחסון בתלייה, במדפים וכיו"ב.
כורסה ומיטה: "טולמנ'ס" , טפט בקיר גב המיטה : "גולדשטיין גלרי טפט " , דלתות: "עץ ירוק "
יחידה דו צדדית
באזור הביניים תכנן גלי ארון נוסף, שאחת מחזיתותיו אינה אלא דלת המובילה אל אזור הרחצה הממוקם מאחוריו, ואף לאורכו של הקיר באזור השינה תוכנן ארון בעל חזיתות זהות בגימור צבע בתנור. להבדיל מהיחידה הדו צדדית המהווה אלמנט דומיננטי בפרישת החלל, שני ארונות אלה משתלבים עם גון הקירות כך שנוכחותם נטמעת במרחב תוך שמירה על תחושה מרווחת. הנועם הא-פורמאלי המאפיין את הבית, נסוך גם בגינה המלבבת שסובבת אותו, ותחושת הוותק העוטפת את שני המרחבים מהדהדת מחשבה על ערכי השבחה שמביא עמו הזמן, ואשר אליהם השכיל גלי לחבור נכונה גם עם תכנים חדשים.
יחידה דו צדדית עשויה מפורניר אלון , שבצד אזור השינה משלבת בתוכה טלוויזיה ושאר נפחה משמש לאחסון.
חדר הרחצה של יחידת השינה :ריצוף וחיפוי באריחים מצויירים בהם מודגש הגון הכחול שהותאם לגון הפתחים. יחידת הכיור בעיצוב מרחף ואוורירי,ואזור השירותים נכלל בשטח החדר כחלל סגור. אריחים מצוירים : " רוחמה שרון "
שרטוט יחידת ההורים לאחר הרחבתה

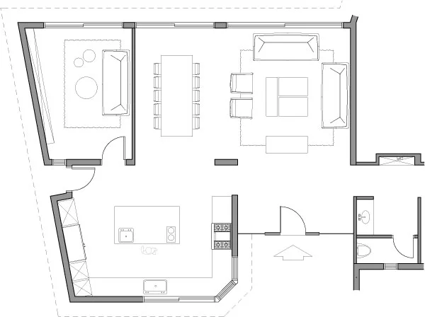
החלל לאחר הרחבת המטבח
עיצוב הבית