שקט מצלמים ,סטודיו לצילום
תכנון

שקט מצלמים ,סטודיו לצילום

 

קבלן ביצוע: רמי בן עמי, רעננה.

תפאורה: גדי מימון, חברת ג'ק רובינזון.

רפד: יוסי מזרחי, אזור התעשייה קריית שאול.

מיקום ושטח: אזור התעשייה ברעננה, כ- 100 מ"ר.

סוג הטיפול: שיפוץ ועיצוב פנים.

על הפרויקט

הפרויקט הייחודי ממוקם בבניין מסחרי/תעשייתי, בן שלוש קומות באזור התעשייה ברעננה. את החלל, שהיה נטוש ומוזנח מזה זמן רב, שכרה הצלמת יהודית הופמן על מנת להגשים חלום של הקמת סטודיו מקצועי לצילום, במסגרת המגמה הרווחת כיום של חזרה ל'פוטו' המסורתי של פעם. למרות שכיום מדובר בדרך כלל על 'בוק' והצילום הוא צילום דיגיטלי, עדיין ניתן לזהות חזרה לדפוס פעולה שנדמה שעבר מן העולם, עם הפיכת המצלמה לפריט בשימוש המוני – ההכרה בצורך בצילום מקצועי כאשר יש צורך בתוצר איכותי.

על מטרת העיצוב

המטרה, אם כן, הייתה ליצור סטודיו שהביקור בו הופך לחוויה כוללת עבור המבקרים בו ואשר כולל מרחב צילום וכן משרד ואזור קבלת קהל. המוטיב המרכזי שהוביל את תכנון העיצוב היה הרצון ליצור חוויה על בסיס תפאורה קבועה ומשתנה, בהתאם לצרכי הצילום. חשוב להדגיש שהתקציב לעבודה היה מצומצם וחסכוני וחלק ניכר ממנו הושקע בטיפול בתשתיות הישנות והמוזנחות (דוגמת ריצוף, אלמנטים מגבס, תאורה, מטבחון וכד').

כניסה לחדר השירותים

על העיצוב

קו העיצוב מחבר בין דרישות הלקוחה (הפרוגראמה) ל'רעיון מוביל' בסטודיו. כך, למשל, נעשה שימוש במוטיבים מעולם הצילום וחיבורם למבנה החלל, למשל, באמצעות בניית קיר מעוגל בכניסה בהשראת דימוי של סרט צילום. קיר מעוגל זה מחלק את החלל לשני חלקים עיקריים – אזור הקבלה ואזור הצילום. בנוסף, תכנון העיצוב הוא פונקציונלי לצורך תפקוד נכון של הסטודיו ולכן נעשה שימוש בתפאורה בעלת גמישות צורנית, על מנת שניתן יהיה להתאימה בקלות יחסית לצרכי צילום משתנים. העיצוב כולו מאופיין בקו צעיר, דינמי ומלא הומור, על מנת להוות מוקד משיכה למצולמים/ות שחלקם הם בני ובנות מצווה המגיעים לצורך צילום 'בוק' חגיגי.

בהמשך לכך, הושם דגש רב על שילוב סטים שיכולים להוות רקע צילומי הולם: גרפיטי, נסיכתי וכד' וכן הושקעו משאבים תכנוניים ועיצוביים ביצירת חוויית ההכנה לצילום: שילוב של עמדת איפור מהודרת, תא הלבשה להחלפת תלבושות לצילום וכד' – אלמנטים אשר מעצימים את חוויית הצילום וההתמקדות במצולמות כ'נסיכות' למספר שעות.

התוצאה

למרות התקציב הצנוע נוצר בחלל 'אירוע' חזותי שאינו משאיר את המבקרים בו אדישים. החלל שופע אלמנטים יצירתיים ומקוריים ומכניס לאווירת צילום וקולנוע בסגנון הוליוודי מזמין. פרויקט מקורי.

עמדות איפור והחלפת תלבושות
עמדת המטבחון והכניסה לסטודיו
עמדת ההמתנה בכניסה לסטודיו
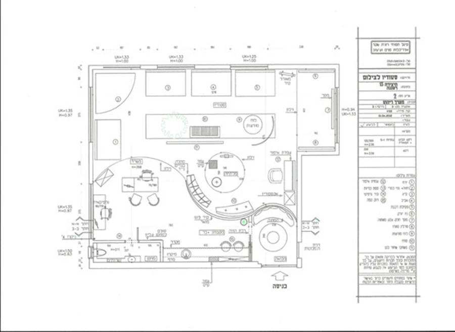
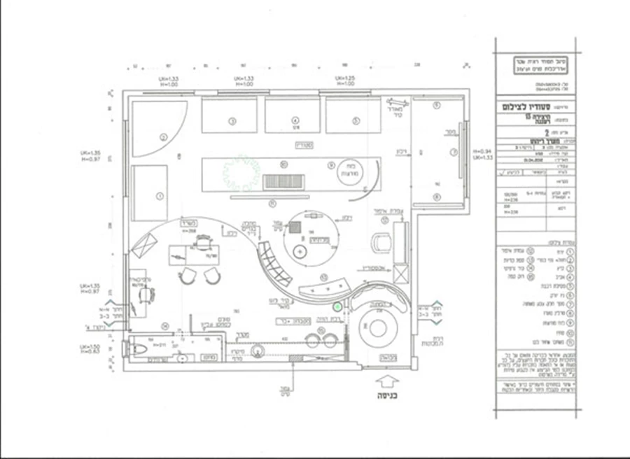
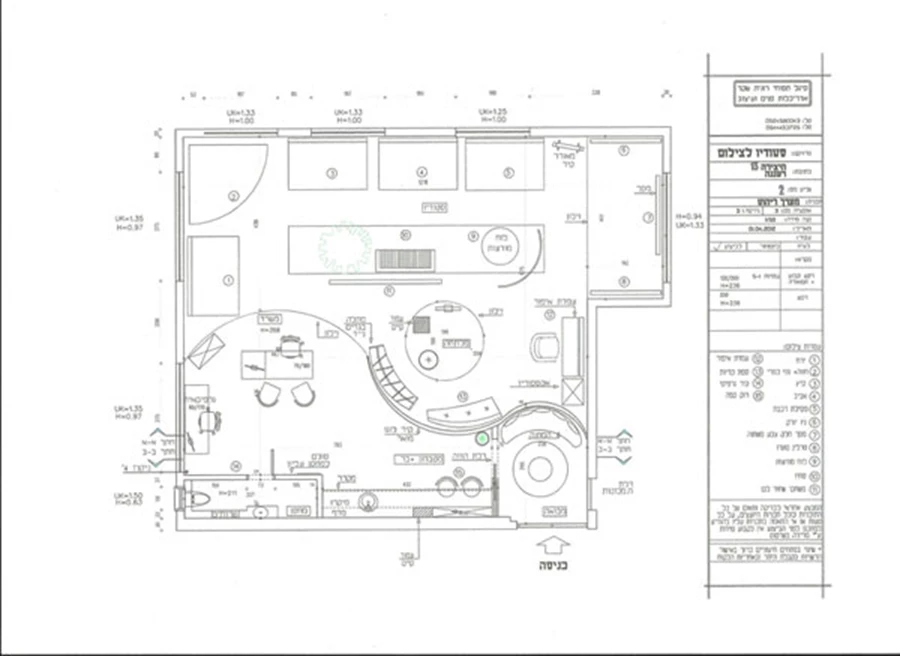
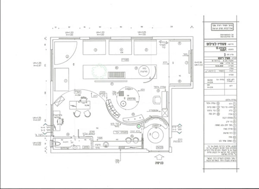
תוכנית 'אחרי' של הסטודיו