לצוף בחלום
אדריכלות

לצוף בחלום

כשמגמת הבתים הזעירים פופולרית כיום מתמיד, האדריכלים מציגים דרכים יותר ויותר יצירתיות לגור בפאר תוך שמירת הקיימות והסביבה. מאחר ורבים מחפשים אחר בתים קטנטנים, המיקום לא פחות חשוב ממשך הבניה עצמה.

חברת ההנדסה הפורטוגזית פריידיי (Friday) ראתה הזדמנות ליצור בית מודולורי צף על המים, מחוץ ל"מסגרת" בין אם לחופשת סופשבוע לקבוצת חברים, או בית פרטי לזוג. ה"בית הצף" (FLOWTING)  מציג דרך ייחודית לחיות חיים ברי קיימא.

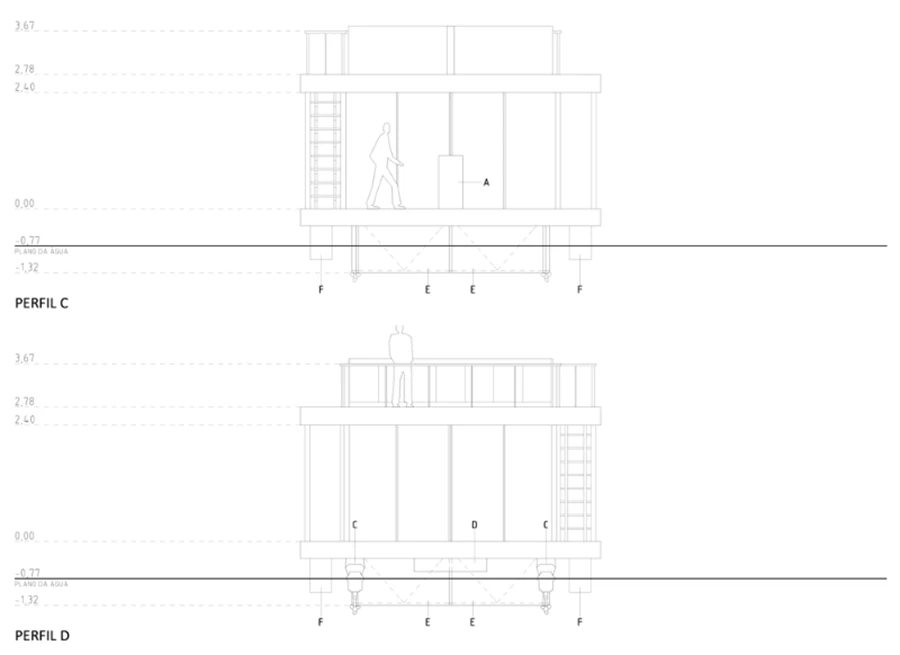
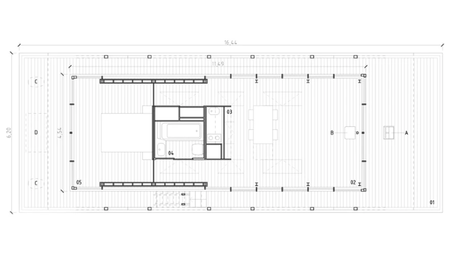
בית-סירה חדשני זה בנוי מחומרים אקולוגיים ומייצר מעט מאוד השפעה על הסביבה. כמו בתיםזעירים רבים אחרים, ה"בית הצף"   ניתן להתאמה מירבית. יש ארבע מגבלות מבניות, והפנים ניתן לתכנון במגוון אפשרויות.

בעוד הרוחב קבוע על 6.9 מטרים, האורך של המרחב הפנימי יכול לנוע בין 10 ועד 18 מטר. "בית הצף"  יכול להיות ללא מנוע, ועל מנת לנוע ממקום למקום תדרש גרירה, או לכלול עד שני מנועים חיצוניים המופעלים באופן חלקי או מלא באמצעות אנרגיה סולארית, הבית יכול לנוע במהירות של עד כ-5.5 קמ"ש.

כשהוא משלב בין מבנה ופונקציונאליות, בעיצוב יש חדשנות רבה  מכפי הנראה. כאשר הוא טעון במלואו , הבית יכול להתנתק ולספק את צרכי דייריו למשך לפחות שבוע, ולספק את האנרגיה הדרושה הן למנוע והן למכשירים החשמליים שבתוכו.

בתוך חצי שנה בלבד, הוא יכול לייצר עד 100% מהצריכה השנתית שלו באמצעות פאנלים פוטו-סולאריים. יתירה מזאת, העיצוב כולו מודולורי, כך שהוא יכול להיות מאוחסן, לעבור ולהיבנות כמעט בכל מקום.

חיפויי העץ, בפנים הבית נותנים תחושת סגנון סקנדינבי, פשטות המתאימה לסביבת המים המקיפה את הבית. לבעלים יש את האפשרות להוסיף תנור גלילי אשר שורף חומרים אורגניים או עץ דחוס, ומעודד חיים בכל עונות השנה בבית הצף.

החלונות מהרצפה עד התקרה מאפשרים לנופים להיות חלק מהבית, בלי הפרדה בין הבפנים לטבע שבחוץ. והגג מהווה מרפסת נוספת לבית.

הבית הצף מזמן לאנשים אפשרות לחיות על המים בלי להתפשר על חיים ברי קיימא או על הסגנון. בין אם כמקום מפלט לחופשה  או בית קבע, זהו מקום חלומי וחדשני להיות בו.