קלאסיקה עכשווית
תכנון

קלאסיקה עכשווית

נוף אורבאני הנשקף מהדירה השוכנת במגדל מגורים גבוה בתל אביב היווה השראה לשפת העיצוב שגיבשה עבורה האדריכלית מלי מנדל: שילוב של מראה קלאסי ורוח מודרנית-עכשווית

החלל הציבורי: מרחב רבוע עטוף במרפסת החושפת ומחדירה את נופה האורבאני של הסביבה.

החלל הציבורי: מרחב רבוע עטוף במרפסת החושפת ומחדירה את נופה האורבאני של הסביבה.

החלל הציבורי: מרחב רבוע עטוף במרפסת החושפת ומחדירה את נופה האורבאני של הסביבה.

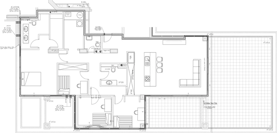
הדירה הייתה, למעשה, בבחינת מעטפת בלבד, שנועדה לכלול ארבעה חדרים, אך היות ודייריה הם משפחה עם שלושה ילדים המטרה העיקרית והראשונה הייתה לחלק את שטחה כך שלכל אחד מהם יהיה חדר משלו" מספרת האדריכלית מלי מנדל על  פרויקט עיצובה של הדירה השוכנת באחד ממגדלי שכונה יוקרתית של מבנים רבי קומות בתל אביב. הדירה מאופיינת במתאר מלבני, והמהלך הראשון שבוצע לפני גיבוש הקונספט העיצובי היה סיפוח שטח המטבח, שבמקור תוכנן כעין "מובלעת" בחלל הציבורי, לטובת החדר הנוסף שנדרש. בתוך כך, הכניסה פנימה מסמנת באורח ברור חלוקה לשני אגפים: אגף ציבורי שמשתרע כמרחב רבוע, פתוח ונטול מחיצות עם יציאה למרפסת גדולה, ואגף פרטי הכולל את כל החללים הפרטיים ומאופיין בתנועת צירים נוחה (ראה תכנית). הנוף האורבאני שנשקף מהדירה היווה השראה לשפת העיצוב שביקשו הדיירים לשוות לה- שילוב של קלאסיקה עם סגנון מודרני-עכשווי, אותו תרגמה מנדל למארג אסתטי בו בולט שימוש חוזר במוטיבים ובפרטים ייחודיים המשתלבים בכל רחבי הדירה. "פלטת החומרים והפרטים ששולבו בעיצוב היא אחידה בכל הדירה, על שני אגפיה. 

אזור הסלון בחלל הפתוח: שפת עיצוב חמימה משלבת ארומה קלאסית ומראה מודרני. ריצוף פרקט בדיגום אדרת דג, קירות בחיפוי טיח המדמה מראה בטון, ממד של ריחוף ותאורה שקועה ונסתרת המייצרת אפקטים שמעשירים את העיצוב.

אזור הסלון בחלל הפתוח: שפת עיצוב חמימה משלבת ארומה קלאסית ומראה מודרני. ריצוף פרקט בדיגום אדרת דג, קירות בחיפוי טיח המדמה מראה בטון, ממד של ריחוף ותאורה שקועה ונסתרת המייצרת אפקטים שמעשירים את העיצוב.

אזור הסלון בחלל הפתוח: שפת עיצוב חמימה משלבת ארומה קלאסית ומראה מודרני. ריצוף פרקט בדיגום אדרת דג, קירות בחיפוי טיח המדמה מראה בטון, ממד של ריחוף ותאורה שקועה ונסתרת המייצרת אפקטים שמעשירים את העיצוב.

אזור הסלון בחלל הפתוח: שפת עיצוב חמימה משלבת ארומה קלאסית ומראה מודרני. ריצוף פרקט בדיגום אדרת דג, קירות בחיפוי טיח המדמה מראה בטון, ממד של ריחוף ותאורה שקועה ונסתרת המייצרת אפקטים שמעשירים את העיצוב.

אני מאמינה שהאחידות מייצרת "חלל מחובר", המגלם המשכיות וסדר נעים לעין" אומרת מנדל על הבחירות שרוקמות את מסגרת שפתה האסתטית: לריצוף, ובכלל זה של כל חדרי הרחצה, נבחר פרקט אלון בדיגום אדרת דג קלאסי; לחיפוי הקירות נעשה שימוש בטיח המדמה חזות של בטון ובטפטים במראה גולמי של בד יוטה; עבודות הנגרות משמרות ממד של ריחוף אוורירי ובוצעו בגימור צבע בתנור; הצבעוניות נשענת על גווני גרז' לסוגיהם; ודגש מיוחד ניתן לנושא התאורה, ששילובה בחלל מושתת על גופי שקועי תקרה וגופים נסתרים המוצנעים במרווחי ניתוק בין מישורים (רצפה וקירות) או מאחורי משטחים מרחפים, תוך יצירת אפקטים מעניינים ו"קווי אור" תוחמים.

המטבח: יחידת אי ויחידת קיר עם חזיתות באפורות כהה בגימור צבע בתנור. במשטח הנירוסטה של יחידת האי משתלבים כיור, כיריים וקולט אדים נשלף, חזיתות ההזזה של יחידת הקיר ניתנות לסגירה מלאה, ולחלופין להסטה החושפת משטח עבודה נוסף המוצנע בתוכה. פינת האוכל בעיצוב מודרני תואם למטבח: שולחן בקווים נקיים-מינימליסטיים וכיסאות עם בסיס נירוסטה. מטבח: ׳האקר׳.

המטבח: יחידת אי ויחידת קיר עם חזיתות באפורות כהה בגימור צבע בתנור. במשטח הנירוסטה של יחידת האי משתלבים כיור, כיריים וקולט אדים נשלף, חזיתות ההזזה של יחידת הקיר ניתנות לסגירה מלאה, ולחלופין להסטה החושפת משטח עבודה נוסף המוצנע בתוכה. פינת האוכל בעיצוב מודרני תואם למטבח: שולחן בקווים נקיים-מינימליסטיים וכיסאות עם בסיס נירוסטה. מטבח: ׳האקר׳.

באזור המבואה מקבל את פני הנכנסים קיר מחופה טפט בדיגום גיאומטרי המזכיר סוג של משרביה או סורג דקורטיבי, ומרבית שטחו של החלל הציבורי שנפרש לעין תחום בויטרינות גדולות מרצפה לתקרה החושפות את המבט לנוף הסביבה ובה בעת מחדירות את נוכחותו פנימה. הסלון שבחלל זה עוצב כפינת ישיבה חמימה עם שתי ספות מזמינות, והמטבח ופינת האוכל מייצגים את הקו המודרני יותר של העיצוב. המטבח משלב יחידת אי ויחידת קיר גדולה המכסה את כל פני שטחו של הקיר ומצוידת בדלתות הזזה המאפשרות לסגור אותה לחלוטין לכדי משטח אחיד ולחלופין להסיטן לצדדים, כאשר אגב כך נחשף משטח עבודה נוסף המוצנע בתוכה. החזיתות עוצבו בגון אפור כהה בגימור צבע בתנור, ובמשטח יחידת האי העשוי נירוסטה משתלבים כיור, כיריים, וכן קולט אדים המוטמע בתוכו וניתן לשליפה בעת הצורך. פינת האוכל הסמוכה למטבח בנגישות נוחה מדברת בשפתו המודרנית עם שולחן בעיצוב מינימליסטי וכיסאות תואמים עם מסגרת מתכת נירוסטה, ושלושת אזורי החלל חוברים זה לזה בהרמוניה המגלמת את השילוב הקלאסי-מודרני.

מבט מאזור המבואה לאזור המטבח ופינת האוכל שבקדמת החלל. חיפוי קיר בטפט שמהדהד תצורת משרבייה.

מבט מאזור המבואה לאזור המטבח ופינת האוכל שבקדמת החלל. חיפוי קיר בטפט שמהדהד תצורת משרבייה.

המטבח: יחידת אי ויחידת קיר עם חזיתות באפורות כהה בגימור צבע בתנור. במשטח הנירוסטה של יחידת האי משתלבים כיור, כיריים וקולט אדים נשלף, חזיתות ההזזה של יחידת הקיר ניתנות לסגירה מלאה, ולחלופין להסטה החושפת משטח עבודה נוסף המוצנע בתוכה. פינת האוכל בעיצוב מודרני תואם למטבח: שולחן בקווים נקיים-מינימליסטיים וכיסאות עם בסיס נירוסטה. מטבח: ׳האקר׳.

המטבח: יחידת אי ויחידת קיר עם חזיתות באפורות כהה בגימור צבע בתנור. במשטח הנירוסטה של יחידת האי משתלבים כיור, כיריים וקולט אדים נשלף, חזיתות ההזזה של יחידת הקיר ניתנות לסגירה מלאה, ולחלופין להסטה החושפת משטח עבודה נוסף המוצנע בתוכה. פינת האוכל בעיצוב מודרני תואם למטבח: שולחן בקווים נקיים-מינימליסטיים וכיסאות עם בסיס נירוסטה. מטבח: ׳האקר׳.

מעבר החדרים באגף הפרטי. פנלים נסוגים מקו הקיר מקנים ממד אוורירי לחלל הצר.

מעבר החדרים באגף הפרטי. פנלים נסוגים מקו הקיר מקנים ממד אוורירי לחלל הצר.

מבט מאזור המבואה לאזור המטבח ופינת האוכל שבקדמת החלל. חיפוי קיר בטפט שמהדהד תצורת משרבייה.

מבט מאזור המבואה לאזור המטבח ופינת האוכל שבקדמת החלל. חיפוי קיר בטפט שמהדהד תצורת משרבייה.

האגף הפרטי מתנהל כציר שלאורכו ממוקמים החדרים, ושילוב הפנלים כך שהם נסוגים מהקיר מקנה למהלכו הצר יחסית ממד אוורירי. יחידת ההורים נחלקת לאזורי שינה, רחצה ואחסון, ועיצובה אכן משקף את הסדר וההמשכיות הויזואלית אליהם חתרה מנדל. את ההפרדה בין אזורי הרחצה והשינה מייצרת מחיצת זכוכית חכמה שבלחיצת כפתור משנה את מופעה משקוף לאטום, ואזור הרחצה נחשף כחלל הכולל אלמנטים שעוצבו ייעודית עבורו, מרשימים בירידה המוקפדת לפרטים. את קירות חלל מחפות פלטות גדולות מאד של גרניט פורצלן שחור, ובאזור המקלחון משתלב ריצוף אבן "הזולג" החוצה תוך יצירת פאנל המפריד בין חיפוי הקיר וריצוף הפרקט.  יחידת הכיור המרחפת משלבת משטח קוריאן עם כיורים אינטגראליים, ושתי מראות גדולות המשלימות אותה "נמשכות" מרצפה לתקרה כשהן כמו חוצות אותה מאחור תוך יצירת קומפוזיציה אופקית-אנכית. המראות מותקנות על "שכבת" קיר מרחפת, כשבמרווח בינה לבין קיר החלל מוטמעת תאורה נסתרת, ואפקט מאיר נוסף מגיע גם מתוך מעין "קופסאות" עם התזת חול המהוות את מסגרתן של המראות. 

יחידת השינה: מחיצת זכוכית חכמה מפרידה בין אזורי השינה והרחצה: פני שטחה משתנים משקוף לאטום בלחיצת כפתור. מחיצת זכוכית: מקלחונט - רפי שפירא.

יחידת השינה: מחיצת זכוכית חכמה מפרידה בין אזורי השינה והרחצה: פני שטחה משתנים משקוף לאטום בלחיצת כפתור. מחיצת זכוכית: מקלחונט - רפי שפירא.

מעבר החדרים באגף הפרטי. פנלים נסוגים מקו הקיר מקנים ממד אוורירי לחלל הצר.

מעבר החדרים באגף הפרטי. פנלים נסוגים מקו הקיר מקנים ממד אוורירי לחלל הצר.

אלמנט תאורה נוסף בחלל זה, הוא ניצול יצירתי של עיבוי הקיר מעל האסלה שבוצע לצורך התקנת מתקן הדחה נסתר: בקיר שעובה "נפרצה" גומחה שבתוכה הותקנה זכוכית מודפסת בדיגום זהה לדיגום הטפט שבאזור המבואה, ותאורה שהוצנעה מאחוריה הופכת את הגומחה כולה לגוף תאורה ייחודי, אשר לצד האווירה שהוא מאציל  מייצר את "החיבור החללי". שירותי האורחים עוצבו תוך שילוב אותם אלמנטים, וכך גם חדר הרחצה המשותף שחולקים הילדים. 

חדריהם עוצבו בהתאמה לגילם, ובכל אחד מהם חופה אחד הקירות בטפט עם תבנית נוף כלשהי כעניין עיצובי, כמו גם לקבלת פרספקטיבה עם עומק המייצרת אשליית מרחב גדול מזה הקיים בפועל.

חדר הרחצה: חיפוי קיר בפלטות גרניט פורצלן שחורות וגדולות במיוחד, יחידות כיור מרחפות עם משטחי קוריאן, ושתי מראות גדולות מרצפה לתקרה שכמו חוצות אותן מאחור. מאחורי הקיר וממסגרות המראות מופצת תאורה נסתרת, ודיגום המשרביה של הטפט בכניסה מצוטט בתוך גומחה על זכוכית מודפסת בשילוב תאורה. אביזרים סניטריים: MODY.

חדר הרחצה: חיפוי קיר בפלטות גרניט פורצלן שחורות וגדולות במיוחד, יחידות כיור מרחפות עם משטחי קוריאן, ושתי מראות גדולות מרצפה לתקרה שכמו חוצות אותן מאחור. מאחורי הקיר וממסגרות המראות מופצת תאורה נסתרת, ודיגום המשרביה של הטפט בכניסה מצוטט בתוך גומחה על זכוכית מודפסת בשילוב תאורה. אביזרים סניטריים: MODY.

יחידת השינה: מחיצת זכוכית חכמה מפרידה בין אזורי השינה והרחצה: פני שטחה משתנים משקוף לאטום בלחיצת כפתור. מחיצת זכוכית: מקלחונט - רפי שפירא.

יחידת השינה: מחיצת זכוכית חכמה מפרידה בין אזורי השינה והרחצה: פני שטחה משתנים משקוף לאטום בלחיצת כפתור. מחיצת זכוכית: מקלחונט - רפי שפירא.

אחד מחדרי הילדים: בכל חדר חופה קיר שלם בטפט עם תבנית נוף, לקבלת פרספקטיבה עם עומק והעצמת תחושת המרחב וגודל החלל.

אחד מחדרי הילדים: בכל חדר חופה קיר שלם בטפט עם תבנית נוף, לקבלת פרספקטיבה עם עומק והעצמת תחושת המרחב וגודל החלל.

המרפסת ביציאה מהחלל הציבורי: ריצוף דק עץ, אזורי ישיבה שונים, ומטבח מאובזר לעילא שמאפשר לארח בנוחות מול הנוף.

המרפסת ביציאה מהחלל הציבורי: ריצוף דק עץ, אזורי ישיבה שונים, ומטבח מאובזר לעילא שמאפשר לארח בנוחות מול הנוף.

חדר הרחצה: חיפוי קיר בפלטות גרניט פורצלן שחורות וגדולות במיוחד, יחידות כיור מרחפות עם משטחי קוריאן, ושתי מראות גדולות מרצפה לתקרה שכמו חוצות אותן מאחור. מאחורי הקיר וממסגרות המראות מופצת תאורה נסתרת, ודיגום המשרביה של הטפט בכניסה מצוטט בתוך גומחה על זכוכית מודפסת בשילוב תאורה. אביזרים סניטריים: MODY.

חדר הרחצה: חיפוי קיר בפלטות גרניט פורצלן שחורות וגדולות במיוחד, יחידות כיור מרחפות עם משטחי קוריאן, ושתי מראות גדולות מרצפה לתקרה שכמו חוצות אותן מאחור. מאחורי הקיר וממסגרות המראות מופצת תאורה נסתרת, ודיגום המשרביה של הטפט בכניסה מצוטט בתוך גומחה על זכוכית מודפסת בשילוב תאורה. אביזרים סניטריים: MODY.

אחד מחדרי הילדים: בכל חדר חופה קיר שלם בטפט עם תבנית נוף, לקבלת פרספקטיבה עם עומק והעצמת תחושת המרחב וגודל החלל.

אחד מחדרי הילדים: בכל חדר חופה קיר שלם בטפט עם תבנית נוף, לקבלת פרספקטיבה עם עומק והעצמת תחושת המרחב וגודל החלל.

המרפסת הסובבת את החלל הציבורי בתצורת ר' היא מרחב מטופח המהווה נקודת תצפית לנופה האורבאני של הסביבה, ושטחה המרוצף בדק עץ נחלק לאזורי ישיבה ואכילה. מטבח מקצועי מאובזר לעילא שמשלים את התמונה מאפשר לארח בה בנוחות ובהנאה מול מראה העיר הנשקף מכל עבר, ומהדהד, ולו במעט, נוף ניו יורקי האהוב על הדיירים. 

המרפסת ביציאה מהחלל הציבורי: ריצוף דק עץ, אזורי ישיבה שונים, ומטבח מאובזר לעילא שמאפשר לארח בנוחות מול הנוף.

המרפסת ביציאה מהחלל הציבורי: ריצוף דק עץ, אזורי ישיבה שונים, ומטבח מאובזר לעילא שמאפשר לארח בנוחות מול הנוף.